Menu

EOS D0340 - 2 ch

Appartement à vendre à Bruxelles

265 000€

Surface

98m2

Chambre(s)

2

Salle(s) d'eau

1

Jardin

Non

Terrasse

Oui

Parking

Oui

Disponibilité

En fonct. du locataire

À vendre

Adresse

Rue Gaucheret 6B,
1000 Bruxelles,
Belgique

En quelques mots

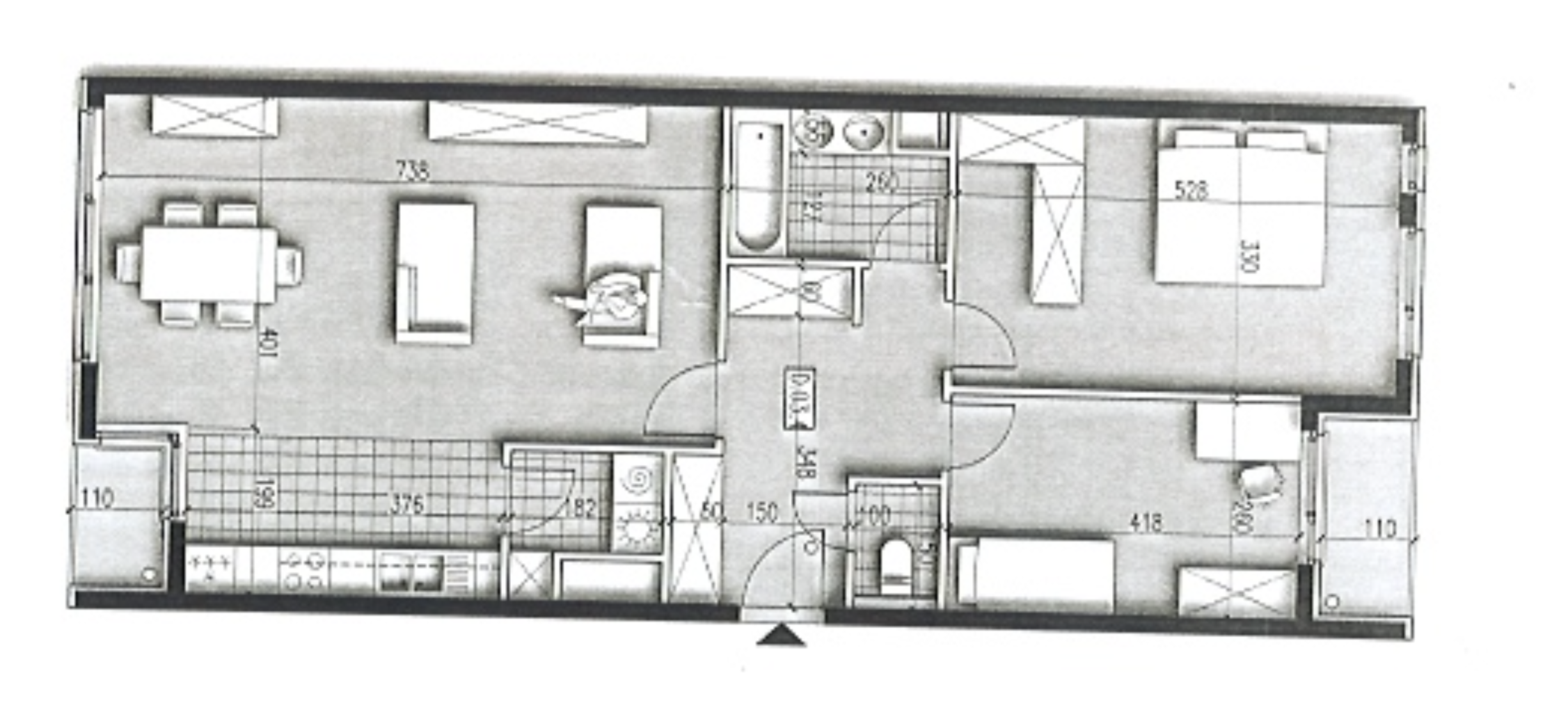
Lumineux appartement 2 chambres avec balcons, situé au 3ème étage d'une rue calme.

Ce bel appartement se compose d'un grand hall d'entrée, d'un vaste salon/salle à manger, d'une cuisine américaine équipée (taque de cuisson, four, hotte, réfrigérateur/congélateur) avec accès au balcon, d'une buanderie, de 2 chambres dont une avec balcon, d'une salle de bains et d'un WC séparé.

Résidence sécurisée construite en 2012, avec ascenseur, double vitrage et parquet.

Actuellement loué 1200€/mois, offrant un rendement locatif brut de près de 5 % – idéal pour un investissement !

Charges communes annuelles : environ 2000 €.

Emplacement de parking en supplément pour 25 000 €. PEB C+ : 98 Kwh/m²/an.

Infos & visites : 0475/600.675 - sebastien@newdeal.immo

Informations

Commune:

Bruxelles

Surface habitable:

98m2

Meublé:

Non

Prix:

265 000€

Disponible:

En fonct. du locataire

Etat:

Excellent état

Année de construction:

2012

Châssis:

Bois

Double vitrage:

Oui

Type de cuisine:

Amer. équipée

E spec (kwh/m²/an):

119

Emission CO2:

25

Label PEB:

C

Certificat d'électricité:

Oui, conforme
Contactez-nous pour ce bien.
Sebastien De Koninck

EOS D0340 - 2 ch

Statut
À vendre
Disponibilité

En fonct. du locataire

Nos biens Similaires

Rotate your device